Продам склад 24300 м.кв.

Просмотров 14
3 037 925 000 руб.
24300 м2
Зеленоград , 5500-й проезд, д.4/3
Отдел продаж
Показать телефон
Данные актуальны на 25.02.2026
Пожаловаться на объявление
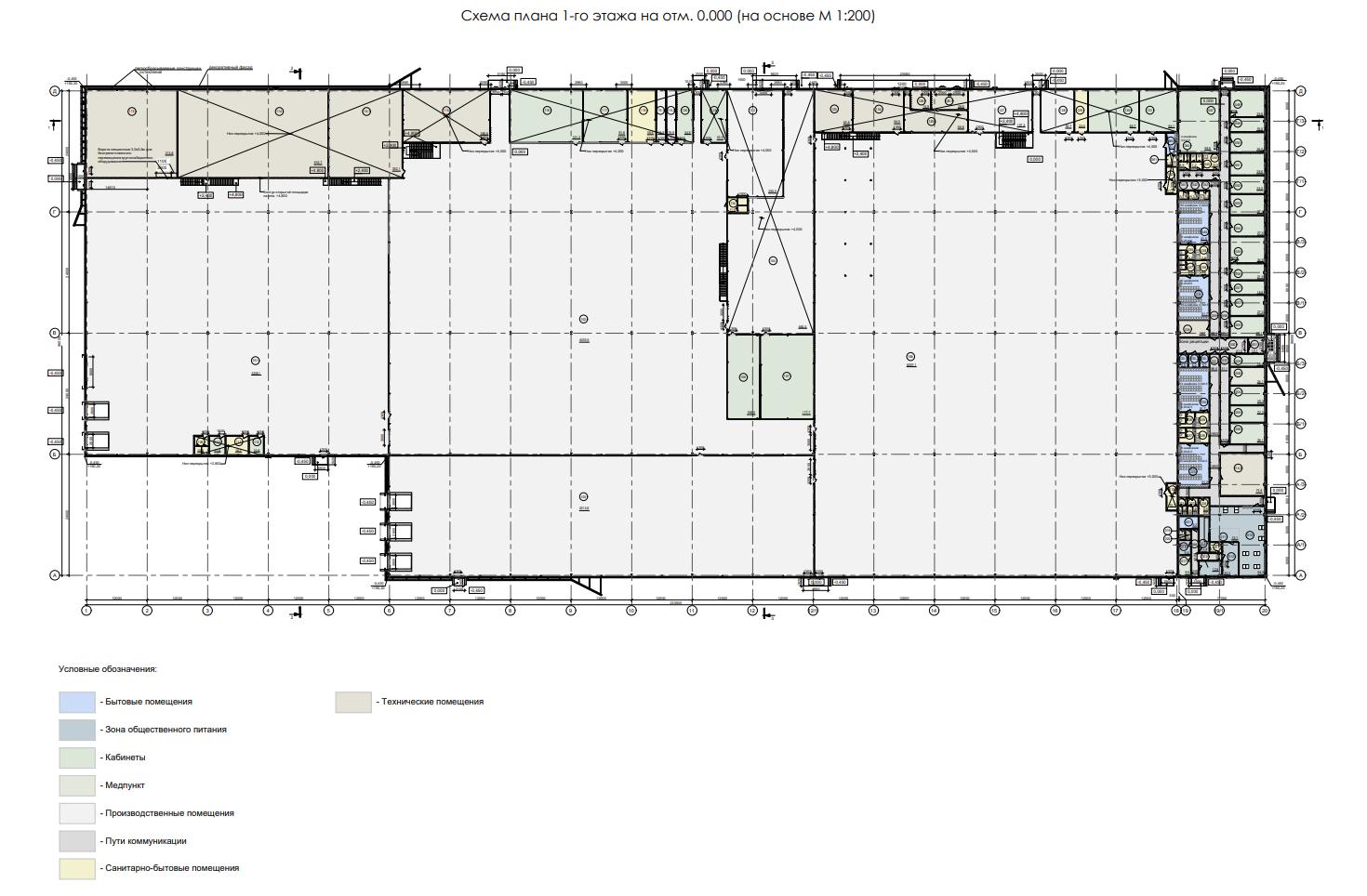
Объект представляет собой современное одноэтажное производственное здание Класса А, общей площадью 24,3 тыс. м2 с высокой инженерной оснащённостью и отличной логистикой, расположенное в сформировавшемся промышленно-складском кластере северного направления Москвы. Максимально быстрый переезд - готовность к запуску 1 квартал 2026 г. Расположение и логистика: г. Зеленоград (инфраструктура и доступ к квалифицированной рабочей силе) 17 км от МКАД по Ленинградскому шоссе, недалеко от аэропорта Шереметьево удобный съезд на Фирсановское шоссе, 1,8 км от Ленинградского шоссе 1,8 км до МЦД «Фирсановская» первая линия Фирсановского шоссе, удобный заезд на участок Основные характеристики: площадь земельного участка- 4,45 га эффективная площадь застройки- 48,5% широкий спектр кодов ВРИ: 6.2, 6.2.1, 6.3, 6.3.1, 6.4, 6.5, 6.6, 6.11 паркинг 20 грузовых, 63 легковых м/м Конструктивные характеристики объекта: одноэтажное здание, высота потолков - 8 м эффективный шаг колонн 2412 м нагрузка на пол до 6 т/м2 бетонный пол с антипылевым покрытием фасад- трехслойные сэндвич-панели Инженерная инфраструктура: электрическая мощность до 60 Вт/м2 с возможностью увеличения по запросу Клиента собственная газовая котельная теплоснабжение 1,5 Гкал/час водоснабжение 24,2 м/сутки класс энергоэффективности А

Дополнительная информация

Тип здания - Вход Отдельный Ремонт С ремонтом Интернет - Кондиционер - Вентиляция - Пожарная сигнализация - Ответственное хранение -
Грузовой лифт - Подъезд для фуры - Наличие пандуса - Наличие железной дороги - 3PL услуги - Электроэнергия 60 кВт Высота потолков - Кран-балка -
Объекты, находящиеся поблизости
Автосервис
Teboil 325м
Газпромнефть 572м
Динамика изменения цен на рынке недвижимости ?

По городу Зеленоград, в категории Складские помещения
За последние полгода средняя сумма за кв.м. выросла на 19795 руб. Колебание цен происходило от 45837 руб. до 65632 руб. Тендов к значительному изменению цены в последнем месяце не наблюдается.
Вход в личный кабинет